| |||||||||||||||||||||||||||||||||||||||||||||||||||||||||||||||||||||||||||||||||||||||||||
物件基本情報 |
| 所在地 | 東京都大田区東蒲田2-36-19 | ||||
|---|---|---|---|---|---|
| 交通 | 京急本線 「京急蒲田駅」 徒歩4分 JR京浜東北・根岸線 「蒲田駅」 徒歩14分 京急本線 「梅屋敷駅」 徒歩12分 |
||||
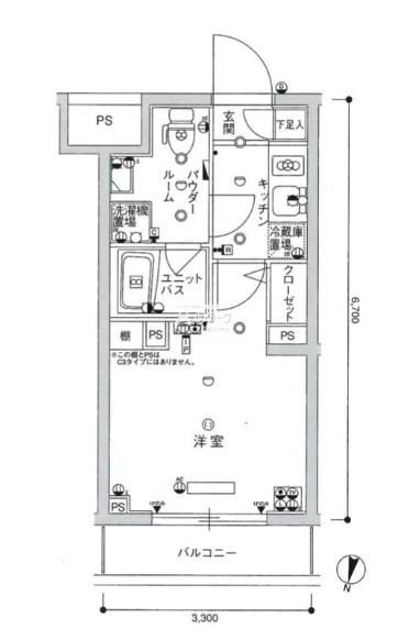
| 種別 / 構造 | マンション / RC造(鉄筋コンクリート造) | 主要採光面 | 北 | 所在階 / 階数 | 1階 / 5階 |
| 築年月 | 2009年10月 | 間取り | 1K( - ) | 専有面積 | 22.11m2 |
物件詳細情報 |
| 損保 | 要 | 更新料 | あり 新賃料 1.5ヶ月 | 鍵交換代 | 29,700円 |
|---|---|---|---|---|---|
| 駐車場 | 近隣駐車場 | 契約期間 借家区分 |
2年 - | ||
| 現況 | 空き予定 | 入居可能日 | 相談 | 取引態様 | 媒介 |
| 保証人代行会社 | 初回保証料:総賃料の50% 月次保証料:総賃料の1.4% |
仲介手数料 | バイク置き場 | ||
| 他初期費用 |
|
||||
設備詳細情報 |
| キッチン |
|
|---|---|
| バス・トイレ |
|
| 住空間 |
|
| 設備・サービス |
|
| 特 徴 |
|
| 条件・その他 | ガス:都市 / 水道:公営 / 排水:下水 / 保証人代行:必加入 |
| コメント | 駅近徒歩4分!JR蒲田店も徒歩圏内!オートロック・宅配ボックス付マンション!バストイレ別の洗面化粧台付の他浴室乾燥機・温水洗浄便座にシステムキッチン2口ガスとシングルライフに欲しい設備となっております(^^)/ |
| 備 考 | - |
学区情報 |
| 小学校区 | 大田区立東蒲小学校 (東京都大田区) |
中学校区 | 東蒲中学校 (東京都大田区) |
|---|
| 情報更新日:2026年04月06日 | 次回更新予定日:2026年04月20日 |




















こちらの物件の空室状況 |
賃貸マンション 8.4万円
梅屋敷駅 徒歩7分
1K(24.96u)
駅近徒歩5分!蒲田駅も徒歩圏内!オートロック付マンション☆彡
|