| |||||||||||||||||||||||||||||||||||||||||||||||||||||||||||||||||||||||||||||||||||||||||||
物件基本情報 |
| 所在地 | 東京都大田区池上7-24-4 | ||||
|---|---|---|---|---|---|
| 交通 | 東急池上線 「池上駅」 徒歩8分 東急多摩川線 「武蔵新田駅」 徒歩9分 |
||||
| 種別 / 構造 | マンション / RC造(鉄筋コンクリート造) | 主要採光面 | - | 所在階 / 階数 | 2階 / 5階 |
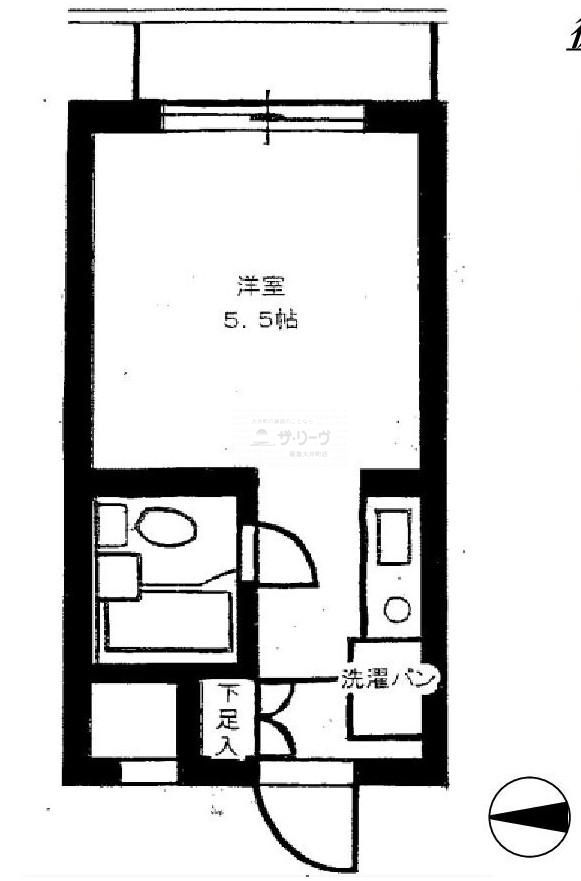
| 築年月 | 1990年2月 | 間取り | ワンルーム( 洋室5.5畳(2階) ) | 専有面積 | 16.1m2 |
物件詳細情報 |
| 損保 | 要 | 更新料 | あり 新賃料 1ヶ月 | 鍵交換代 | 22,000円 |
|---|---|---|---|---|---|
| 駐車場 | 近隣駐車場 | 契約期間 借家区分 |
2年 - | ||
| 現況 | 空家 | 入居可能日 | 即入居可 | 取引態様 | 専任 |
| 保証人代行会社 | 初回保証料:総賃料の50% 月次保証料:総賃料の1.3% |
仲介手数料 | 1.1ヶ月 | バイク置き場 | |
| 他初期費用 |
|
||||
設備詳細情報 |
| キッチン |
|
|---|---|
| バス・トイレ |
|
| 住空間 |
|
| 設備・サービス |
|
| 特 徴 |
|
| 条件・その他 | ガス:都市 / 水道:公営 / 排水:下水 / 保証人代行:必加入 |
| コメント | 2線2駅の利用が可能!分譲賃貸マンション!CATV対応物件!徒歩2分のところにスーパーサミットがあるので買い物に便利!内見も出来ますのでお気軽にお問い合わせください(^^)/ |
| 備 考 | - |
学区情報 |
| 小学校区 | 大田区立矢口小学校 (東京都大田区) |
中学校区 | 安方中学校 (東京都大田区) |
|---|
| 情報更新日:2025年11月10日 | 次回更新予定日:2025年11月24日 |




















こちらの物件の空室状況 |
|